Community Homes by Waco Habitat

Community Homes Logo

What is Community Homes by Waco Habitat?

Community Homes by Waco Habitat for Humanity expands access to affordable homeownership through the construction of new, energy-efficient homes. Approved low-income applicants purchase their home using traditional financing and eligible grant programs, reducing barriers to homeownership while promoting stability and equity for families and neighborhoods.

Featured Home

55178480649_a136d4dd19_o
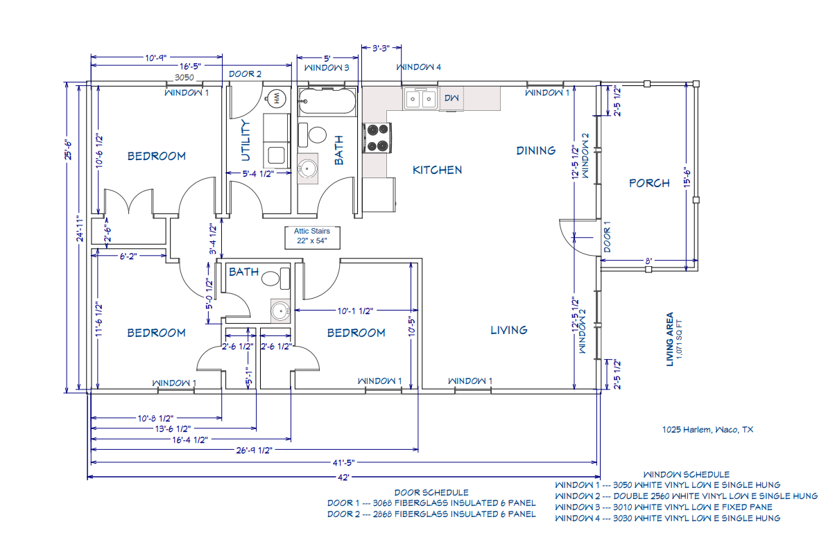
1025 Floor Plan

 

 

 

1025 Harlem Ave.

Selling Price: $212,000

(Grants are available for qualified homebuyers)

3 Bed | 1.5 Bath | 1071 sq. ft.

  • Granite Countertops
  • Soft Close Cabinets
  • Brushed Nickel Finishes
  • Washer, Dryer, Fridge, Vent-a-hood microwave, Garbage Disposal, and Stove all included with the home.
  • Stained Concrete Floors
  • 2 Car Driveway

Are You Eligible?

Requirements:

  1. Household income must fall under 80% of AMI (HUD income guidelines for McLennan County).
  2. Applicants must be able to obtain a mortgage through a third-party lender.
  3. Applicants must have a minimum of two years of consistent work history (No gaps of more than 30 days of employment)
  4. Credit
    • Applicant must not have had a foreclosure within the past three (3) years.
  5. Applicant must complete a HUD certified Homebuyer Education before closing on the home.
  6. Every member of the household must be a U.S. Citizen or Permanent Resident
  7. Applicant must be a first-time homebuyer.
  8. Applicant must have lived and/or worked in McLennan County for at least a year.

 

Income Guidelines

Have Questions?

Please contact Joshua Martinez using the following button.